web templates free download

[SILENT] LEGACY

Personal work

[SILENT] LEGACY

Competition project for Plastic Waste Monument for National Geographic.

Brief: The monument will be a part of travelling exhibition with National Geographic which aims to bring further awareness about plastic pollution and recycling.

By now everyone is aware of the impact plastic waste has on our planet and the benefit of reducing single use plastic and increasing recycling. Nevertheless, thousands of plastic items end up each day in fields, rivers and oceans which affect life of earth to a great degree. 

Silent Legacy is a monument which is aiming to bring further awareness about plastic pollution.

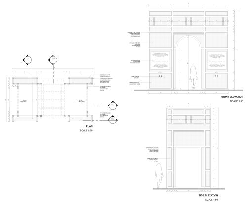
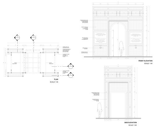
The installation is inspired by the traditional Roman Triumphal Arch. The arch was used to commemorate victories and milestones. Here, it is an ironic expression of the most time lasting legacy of a person throughout their lifetime; a legacy which continues to exist for many future generations- their waste. The installation is a stainless-steel mesh structure, supported by mullions, filled with transparent recyclable waste of everyday life: plastic bottles, containers, wraps and the like.

The structure follows the traditional architectural rules of proportions which are represented by the division with the mullions. At the bottom of the structure at four sides, there are four bins for recyclable waste. On each side there is one bin for plastic and one bin for metal waste. The bins will collect the waste throughout the exhibition. 

The monument is made entirely of recyclable materials: stainless steel mesh, aluminum, bio-on plastic, recyclable waste. The mullions allow it to be taken apart and reinstalled to different places, both at indoor and outdoor areas as the structure has been designed to withstands all weather conditions .

© Copyright 2020 Galina Zapreva Architecture - Some Rights Reserved